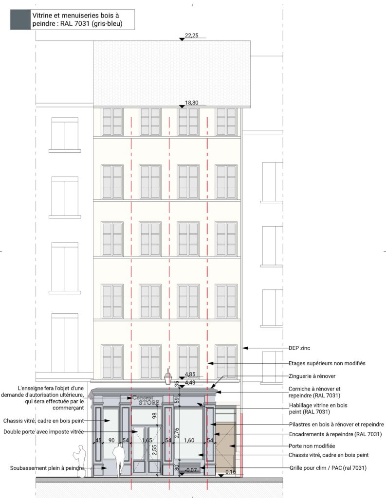
Cet ancien bar, sans aucun vitrage a été racheté avec pour objectif d’en faire un local commercial.
La vitrine étant classée comme remarquable, l’intervention devait être faite en corrélation avec l’existant, les attentes du client et celles de l’Architecte des Bâtiments de France.
Une majeure partie de la vitrine en bois est ainsi conservée, et de larges panneaux vitrés installés.



Localisation : Lyon 1 (69)
Maîtrise d’œuvre : 4 Quarts Architectes
Maître d’ouvrage : Privé
Missions : DP + PRO/DCE
Coût des travaux : 70 000 € HT
Année de livraison : En cours